Vous avez pour projet d’agrandir votre habitation et pour gagner de l’espace sans devoir construire un nouveau bâtiment, vous vous êtes tourné vers les combles. Espace perdu depuis longtemps, aménager les combles est un moyen efficace de donner de la valeur ajoutée à votre maison sans devoir partir dans des travaux interminables ! On vous présente donc un exemple de permis de construire combles afin de vous aider lors de l’élaboration de ce dossier.
Une demande d’autorisation d’urbanisme pour des fenêtres de toit se présente sous un permis de construire ou une déclaration préalable. En ce qui concerne les combles, vous aurez besoin d’un permis de construire si ces derniers ont une surface de plancher et une emprise au sol supérieure à 20m2 dans une zone qui n’est pas soumise à un POS ou PLU. Dans les zones soumises à un POS ou PLU, la surface de plancher et l’emprise au sol doivent être supérieures à 40m2. Inférieur à ces dimensions, vous devrez vous tourner vers une déclaration préalable.
Avant d’aller plus loin, sachez que le service en ligne Algar étudie méticuleusement votre Plan Local d’Urbanisme et réalise l’ensemble de vos plans. Votre projet aura alors 98%* de chance de voir le jour ! *(98% correspond au résultat des dossiers acceptés par les mairies depuis la création d’Algar)
Faites décoller vos projets
Obtenez votre permis de construire sans vous prendre la tête et dans les temps !
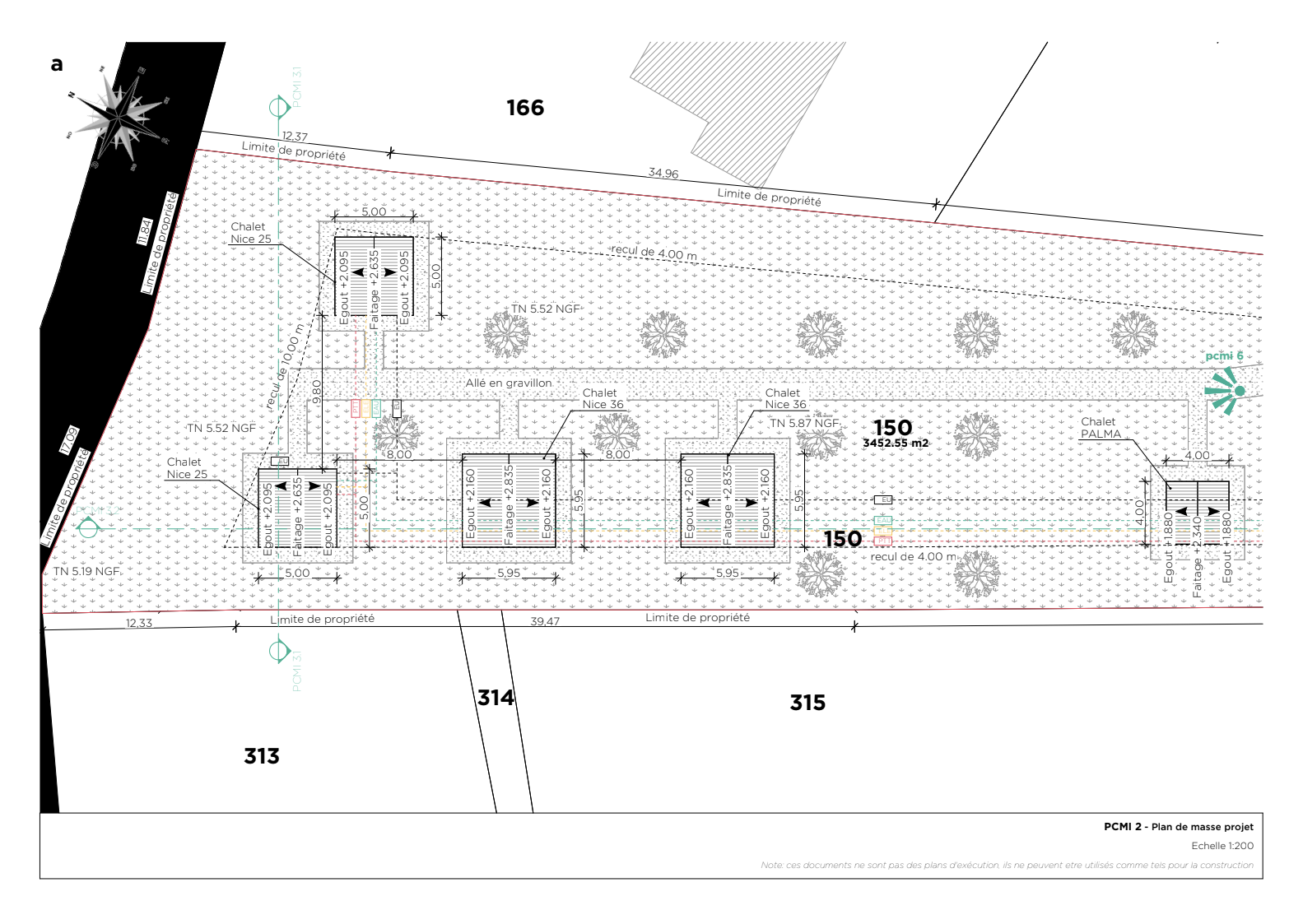
Exemple de permis de construire combles : les plans à fournir
Pour que votre dossier soit complet, il vous faut fournir différents types de plans. Commençons tout d’abord par le plan de situation. Il permet d’identifier la zone où se trouve votre terrain pour en déduire les règles d’urbanisme applicables. Ce document est nommé PCMI 1 pour un permis de construire et DP 1 pour une déclaration préalable.
Passons ensuite au PCMI 2 ou DP 2, plus communément appelé un plan de masse. Il correspond à une vue aérienne où l’on aperçoit les bâtiments et leurs dimensions et autres plantations.Puis viens le plan de coupe, PCMI 3 ou DP3. Il permet à votre instructeur de se rendre compte du volume de votre projet et son implantation sur le terrain, le tout de profil.
Vient ensuite la partie la plus importante de votre dossier. Il s’agit du PCMI 5 ou DP4 : les plans de façades. Il sont utilisés afin de discerner l’aspect extérieur et les hauteurs de votre projet. Il est nécessaire de fournir deux plans de façades, l’un sans et l’autre avec votre projet.
Et enfin, l’insertion 3D ! Cette pièce permet de voir clairement la finalité de votre projet dans son environnement.
Une aide précieuse pour votre permis de construire
Vous pouvez donc élaborer votre demande d’autorisation d’urbanisme sans soucis grâce à cet exemple de permis de construire combles ! Les différentes pièces à fournir doivent faire toutes parties de votre dossier. Dans le cas contraire votre commune demandera des documents complémentaires ou refusera votre projet. Si cette tâche vous semble trop compliquée, que vous souhaitez démarrer vos travaux au plus vite, Algar peut vous aider ! Nous vous proposons un service de permis de construire en ligne afin de simplifier les démarches administratives ! Simple et sur-mesure, il vous suffit simplement de nous décrire votre projet, nos experts en urbanisme s’occupent du reste !



















