Pour quel(s) projet(s) avez-vous contacté Algar ?
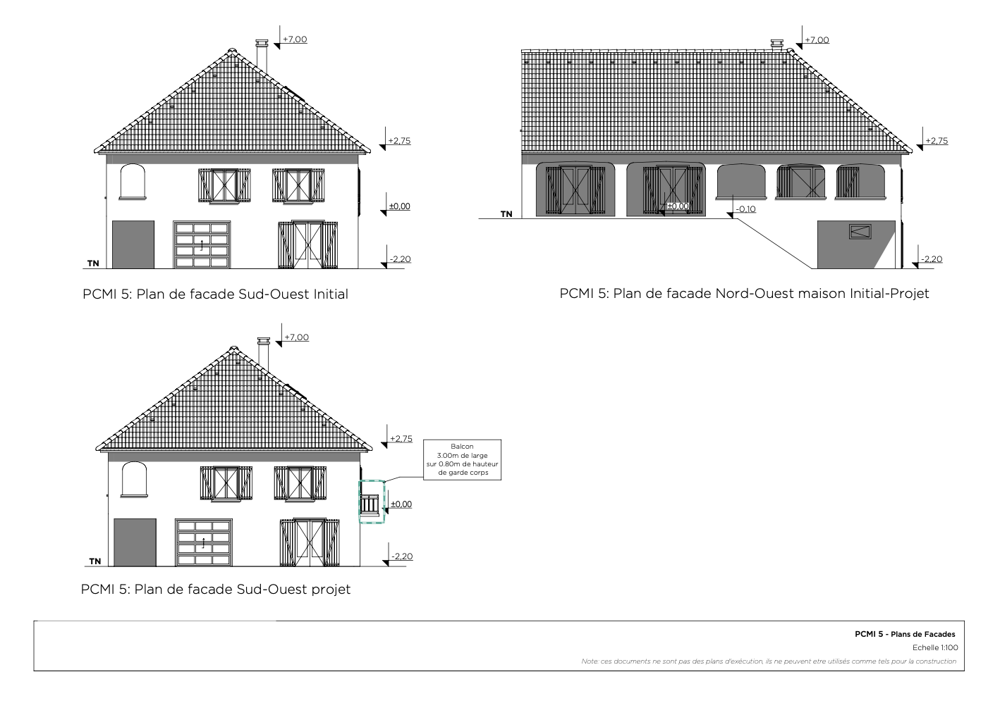
J’ai contacté Algar en novembre 2019 pour plusieurs projets : l’aménagement de mes combles, la pose de puits de lumière, la modification de ma façade et enfin la construction d’un balcon. Je suis tombé sur le site en faisant des recherches sur mes projets sur Google. Après la première prise contact, l’équipe a réalisé mon dossier de Aà Z. Le dossier est ensuite parti en mairie. Il a fallu à peu près un mois que ma demande soit validée !
Faites décoller vos projets
Comme Noël, réalisez vos projets sans plus attendre. Obtenez votre dossier complet et vos plans maintenant !
Après obtention de la DP/PC, comment se sont déroulés vos travaux ?
Malheureusement à cause de la situation sanitaire et les conséquences du covid-19, rien n’a encore commencé avec mon constructeur. Par contre je recommanderais sans hésiter le service Algar à mes proches. Ce service est très pratique. Surtout quand on ne s’y connait pas ou peu.























